
O desenvolvimento de projetos arquitetônicos para edifícios residenciais e comerciais engloba a criação de plantas baixas, cortes, fachadas e detalhes arquitetônicos. Além disso, desenvolvemos suas respectivas integrações (estrutural, elétrica, hidrossanitário e de prevenção contra incêndios).
Projetos Aquitetônicos e Complementares
Projeto Arquitetônicos
Um projeto arquitetônico é um plano detalhado que descreve a concepção e organização de um espaço construído. Inclui elementos como plantas, cortes, fachadas e detalhes arquitetônicos, visando criar ambientes esteticamente atraentes e otimizados em termos de funcionalidade e uso eficiente do espaço disponível.


Projeto Estrutural
O projeto estrutural garante a segurança, estabilidade e durabilidade da edificação. Além disso, influencia na eficiência e economia da obra ao otimizar o uso de materiais. A integração eficaz com o projeto arquitetônico assegura a conciliação entre estética e funcionalidade, tornando-se fundamental para a construção de edifícios duráveis e eficientes.


Projeto Elétrico
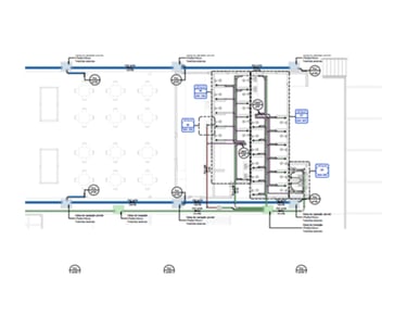
O projeto elétrico desempenha um papel vital em qualquer construção, assegurando o adequado funcionamento e segurança das instalações elétricas. Ao determinar a distribuição eficiente de pontos de energia, iluminação e equipamentos, ele contribui para a eficiência energética e evita sobrecargas.


Projeto Hidrossanitário
O projeto hidrossanitário é responsável pelo planejamento e dimensionamento das instalações de água e esgoto. Sua importância reside na garantia do abastecimento de água adequado, bem como na eficiente coleta e tratamento de esgoto.


Projeto Preventivo Contra Incêndio
O Projeto Preventivo Contra Incêndio é fundamental para a segurança de edificações. Ele envolve o planejamento detalhado de sistemas e medidas que visam prevenir, controlar e combater incêndios. Ao considerar a disposição de extintores, sinalização adequada, sistemas de sprinklers e rotas de evacuação, o projeto visa garantir a proteção eficaz tanto das pessoas quanto do patrimônio.


Projeto de Paisagismo
O Projeto Paisagístico desempenha um papel crucial na concepção de espaços harmoniosos e agradáveis. Ao integrar elementos naturais, como plantas e hardscape, considerando fatores estéticos e funcionais, ele contribui para a criação de ambientes atraentes e sustentáveis.


Projeto Retrofit
O projeto retrofit é uma abordagem abrangente e inovadora para a renovação e modernização de edifícios e infraestruturas existentes.
Em vez de demolir e reconstruir, o retrofit permite que estruturas antigas atendam aos padrões contemporâneos de eficiência, sustentabilidade e design.


Contatos
vertikali.engenharia@gmail.com
Solicite já um orçamento!
Vertikali Copyright © 2026- CNPJ 36.603.468/0001-18 - Todos os direitos reservados.
Redes Sociais
Rua Hermann Tribess, N° 2461 Bairro Tribess, Blumenau - SC
